
手枪户型、锯齿户型对比图,破解手枪户型、锯齿户型风水犯凶的方法介绍

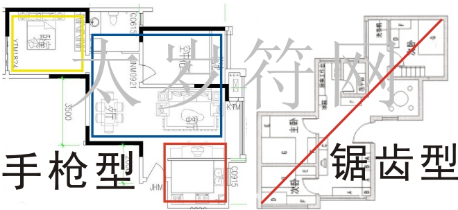
图一、手枪户型、锯齿户型对比图
手枪户型、锯齿户型对比图,破解手枪户型、锯齿户型风水犯凶的方法介绍
刀把房已经犯了严重的缺角煞,风水大凶。手枪户型包含了两个刀把房,锯齿户型包含了两个手枪手枪。手枪房、锯齿房之类奇葩户型比刀把房的危害性更大,应该尽可能避免购买租住的。
如图一所示,手枪房左上部分的黄色部分与中间蓝色部分在外形上构成刀把房格局,右下部分的红色部分与中间蓝色部分再次在外形上构成刀把房格局。刀把房只是在一个方位出现了巨大的缺角,手枪房这种连续曲折、二次缺角的情况比刀把房更凶,所以手枪型房的风水危害比刀把房更大。
锯齿式的户型是在对角的两个方位都形成的连续曲折、二次缺角。如果把锯齿型房子沿着红色对角线一分为二,可以清楚的看到,锯齿式的户型就是两个手枪房组合的结构。因为是在对角方位连续曲折、二次缺角,所以锯齿形与手枪型房相比危害性更大,
根据“万煞不离五行宗、知此化煞有神功”的原则,刀把房、手枪房、锯齿房等风水犯煞房型可采用五行通关、阴阳相济之法化解转运,趋吉避凶。具体方法如下:
1、请阴阳五行护身符随身携带或放在卧室床头,催动自身阴阳五行气场周而不散、行而不乱,护佑元神,平安吉祥。
2、同时请五行八卦福镇宅理气,催动五行流通生旺气、五行流通生财气,调节阴阳和谐保安宁、阴阳和谐旺宅运。
趋吉避凶真君子,相时而动大丈夫。正品开光阴阳五行护身符、五行八卦福得到在线财神加持护佑的,现在有假冒仿制的,勿请错了。参阅《如何识别未开光假开光的山寨版假冒五行八卦福?》,http://www.twtsw.com/eHtml/2017314/1654_2452.html。
尤其注意看清楚:五行八卦福就是五行八卦福这五个字,六个字的五行八卦字福、七个字的五行八卦门符福等,虽然只差一个字、两个字,这些都不是五行八卦福。另外颠倒排列的福五行八卦虽然也是五个字,但是名称顺序错乱,也不是五行八卦福。这就好比“联想起电脑”不是“联想电脑”;“天奴华伦”或“华伦天奴•G•V”不是“华伦天奴”, 联想起电脑、天奴华伦、五行八卦符福等名称包藏着不可告人的目的,都是刻意的山寨假冒行为。参阅《来源、名称、图案,判断真假五行八卦福的三个简便方法》,http://www.twtsw.com/eHtml/2016811/1652_2133.html。
图二、五行八卦福、阴阳五行护身符









